Bürogebäude Mozartstraße

Alle Projekte
  • Kategorie: Revitalisierung
  • Nutzung: Büro
  • Konstruktion: Massiv
  • Mehr Details
    Leistungen
    LP 1–8 

    Standort
    Mozartstraße 4
    München

    Bruttogeschossfläche
    3.600 m² 

    Landschaftsarchitektur

    Pangratz + Keil PartGmbB Landschaftsarchitekten

    Auftraggeber
    Storchen Immobilien Management GmbH

Direkt am Eingang zum Wiesnviertel, dem denkmalgeschützten Ensemble in der Ludwigsvorstadt, haben OLIV Architekten ein Bürogebäude zwischen Goetheplatz und Kaiser-Ludwig-Platz realisiert. Die besondere Herausforderung bei diesem Projekt bestand darin, ein Wohngebäude in eine moderne Bürostruktur umzuwandeln und sich dabei harmonisch in die Nachbarschaft einzufügen.

Lageplan

Standort und Kontext

Der Entwurf fügt sich sensibel in die gewachsene Struktur des Münchner Wiesnviertels ein und reagiert auf die stilistische Vielfalt der Umgebung. Die Architektur des Bürogebäudes greift sowohl die Ordnung der gründerzeitlichen Fassaden auf als auch die der Nachkriegsmoderne – in direkter Nachbarschaft etwa zum Royal-Filmpalast von Sep Ruf und Hein Goldstein sowie zum Post- und Wohngebäude von Robert Vorhoelzer, Walther Schmidt und Franz Holzhammer im Stil der Neuen Sachlichkeit. Durch die Schließung des Blockrands wird eine städtebauliche Verbindung geschaffen und die Bebauung entlang der Mozartstraße gestalterisch einheitlich gefasst. Die Nähe zur Theresienwiese, zur Münchner Innenstadt und zum Hauptbahnhof sowie die direkte Anbindung an das Münchner U-Bahnnetz machen den Standort besonders attraktiv.

0/0

Gestaltung und Architektur

Das neue Gebäude nimmt den gleichen Fußabdruck des Bestandsbaus ein – ein Baukörper aus den 1950er-Jahren mit einer Gaststätte im Erdgeschoss und einem Hostel in den oberen Geschossen – und übersetzt dessen Volumen und Erscheinung in eine zeitgemäße Architektursprache, die sich harmonisch in das Quartier einfügt, das einst als das Villenviertel Münchens bekannt war.

Die Fassade des Erdgeschosses ist mit hellen Natursteinplatten verkleidet und bildet eine ablesbare Sockelzone. Darüber folgt der Fassadenbereich des ersten bis dritten Obergeschosses, der mit handwerklich ausgeführten Putztechniken – dem Kammzug – gestaltet ist. Ein glatt verputztes Dachgeschoss schließt das Gebäude nach oben hin ab. Das Dach selbst ist als Mansardendach ausgebildet und hebt sich durch seine dunkle Farbgebung vom Baukörper ab.

Natursteinfaschen fassen die Fenster ein, gliedern die Fassade rhythmisch und greifen gestalterische Elemente der historischen Bebauung des frühen 20. Jahrhunderts am Standort auf. Das neue Bürogebäude reminisziert in seiner Gestaltung an das historisch gewachsene Wiesn-Ensemble und setzt bewusst auf klassische Proportionen und handwerkliche Präzision.

0/0
0/0

Innere Struktur und Nutzung

Ein zentral gelegener, hochwertig gestalteter Treppen- und Aufzugskern erschließt das Gebäude und verbindet alle Ebenen über zwei Personenaufzüge sowie eine offen geführte Treppe. Die Technikflächen sind im ersten Untergeschoss untergebracht; die beiden darunterliegenden Tiefgaragenebenen werden über einen PKW-Aufzug erschlossen.

0/0
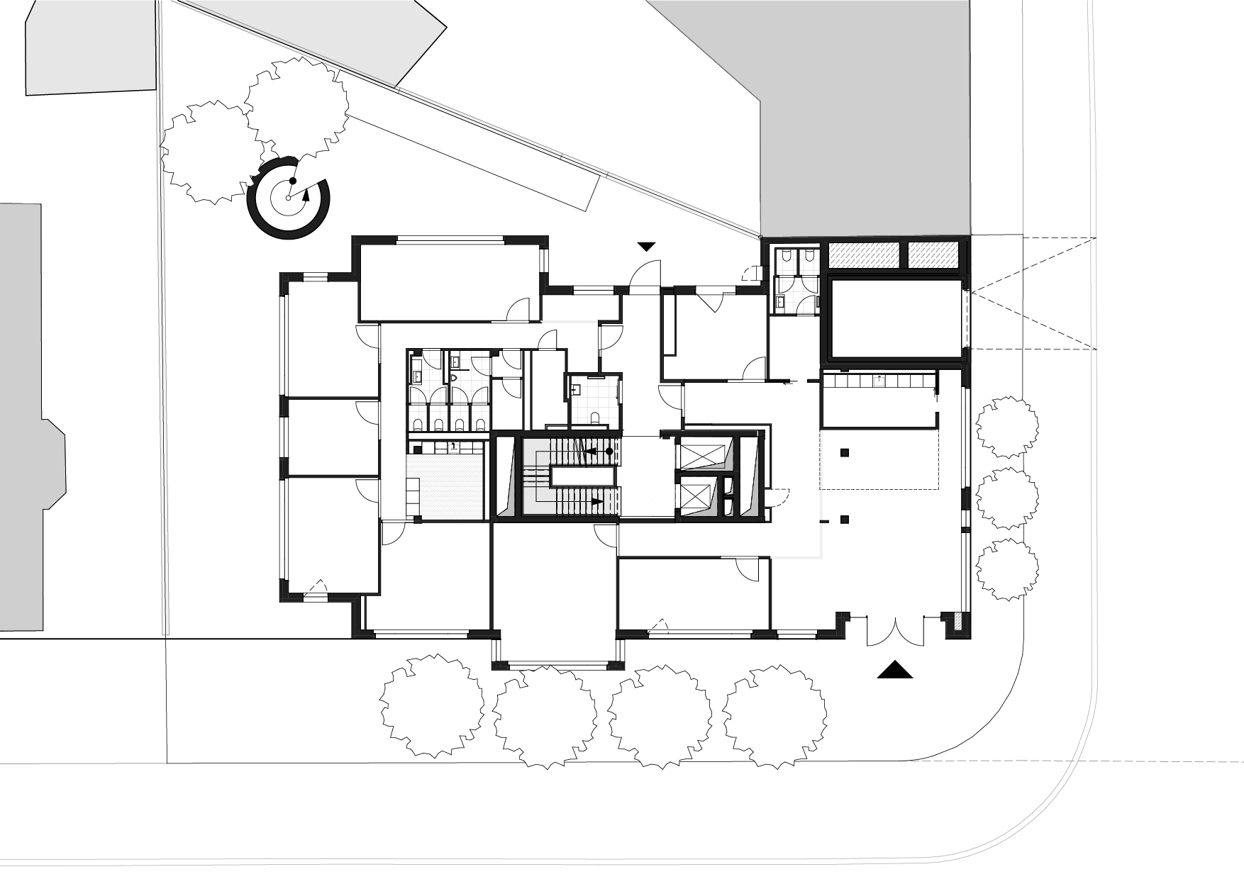
  • Grundriss Erdgeschoss
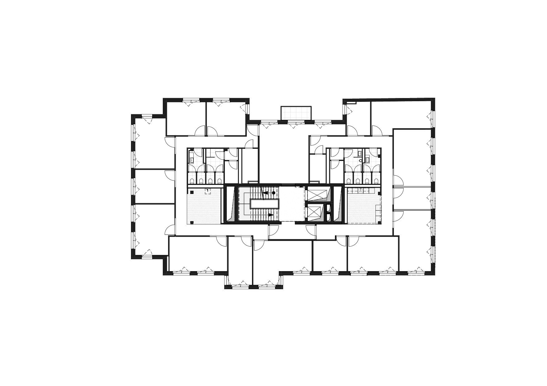
  • Grundriss 4. Obergeschoss
  • Grundriss 2. Obergeschoss
  • Arbeitsräume im Erdgeschosss
0/0

Grundrisse

Die Grundrisse der Obergeschosse ermöglichen unterschiedlichste Büroeinheiten und Zonierungen – von Einzelbüros über helle Besprechungsräume bis hin zu offenen Aufenthaltsbereichen auf verschiedenen Geschossen. Auf jeder Etage steht eine Teeküche zur Verfügung, im vierten Obergeschoss zusätzlich eine großzügige Gemeinschaftsküche mit hochwertiger Ausstattung.
Bei den Materialien dominieren langlebige, zurückhaltend gestaltete Oberflächen: mineralischer Werkstein in den Küchen sowie Holz-Aluminium-Fensterelemente mit tiefen Laibungen prägen das Interieur. Balkone auf allen Etagen sowie zwei Dachterrassen im obersten Geschoss erweitern die Nutzbarkeit in den Außenraum.

Die Steuerberatungs-, Wirtschaftsprüfungs- und Rechtsanwaltskanzlei Intaria AG mietet das gesamte Gebäude an und konsolidiert darin ihre Münchner Standorte. Das Gebäude steht für architektonische Zurückhaltung, die gestalterische Qualität mit zeitgemäßer Nutzung verbindet.

Außenräume und Freiraumgestaltung

Der private Gartenbereich auf der Rückseite nimmt die Gestaltung der angrenzenden Gärten auf und fügt sich stimmig in das gewachsene Umfeld der Ludwigsvorstadt ein. Pergolen, Pflanzflächen und Sitznischen schaffen Aufenthaltsqualität und einen nutzbaren Außenraum im Arbeitsalltag. Die sorgfältige Freiraumgestaltung ergänzt den architektonischen Anspruch des Gebäudes und stärkt dessen Einbindung ins Quartier

Diese Website verwendet Cookies.
Detailierte Informationen zum Datenschutz finden Sie auf der Seite Datenschutz


Diese Website verwendet Cookies.

Wir verwenden Cookies, um Inhalte und Anzeigen zu personalisieren, Funktionen für soziale Medien bereitzustellen und unseren Datenverkehr zu analysieren. Außerdem teilen wir Informationen über Ihre Nutzung unserer Website mit unseren Partnern für soziale Medien, Werbung und Analysen. Diese Partner können die Informationen mit weiteren Daten kombinieren, die Sie ihnen bereitgestellt haben oder die sie im Rahmen Ihrer Nutzung ihrer Dienste gesammelt haben.