Geschäftshaus Triebstraße

Alle Projekte
  • Kategorie: Neubau
  • Nutzung: Büro, Sonstige Nutzung
  • Konstruktion: Massiv
  • Mehr Details
    Leistungen
    LP 1 – 5 

    Standort
    Triebstraße 36-40
    München

    Bruttogeschossfläche
    ca. 11.000 m² 

    Bauherr
    Concrete Capital

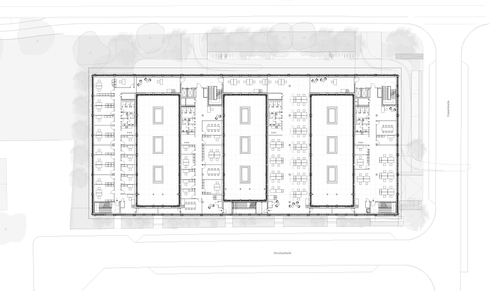
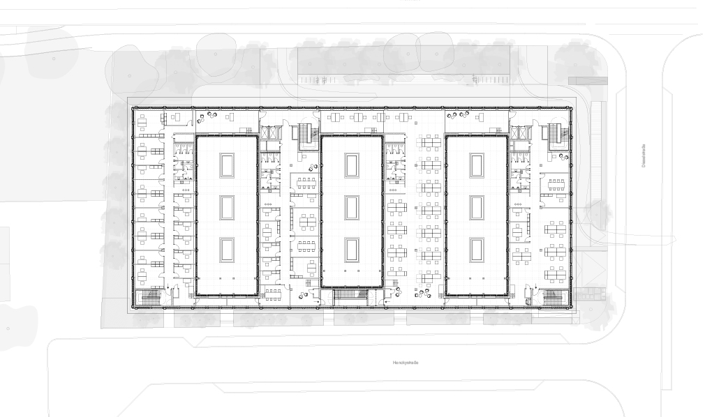
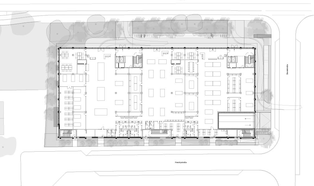
Das Projekt zeichnet sich durch eine klare Gebäudestruktur und Fassade aus. Das mit Sichtbeton und großen Glasflächen hervorgehobene Erdgeschoss schafft einen starken Bezug zum öffentlichen Raum und bietet offene Flächen für Maker Spaces und Kleingewerbe. Produktions- und Gewerbehallen kommen weitestgehend ohne Stützen aus und schaffen somit maximale Nutzungsflexibilität

Fassasdengliederung

Ein ringförmig umlaufendes Vordach mit intensiver Bepflanzung gliedert das Gebäude horizontal und setzt die Obergeschosse vom Sockelgeschoss ab. In den Obergeschossen befinden sich großzügige Büroflächen.

Freiraum Design

Um optimale Verhältnisse für die natürliche Belüftung und Belichtung zu schaffen, werden die Obergeschosse mit drei großen und intensiv begrün­ten Innenhöfen untergliedert und belichten durch die im Boden eingelassenen Oberlichter das Erdgeschoss.

Mit Holzbalkonen werden die Innenhöfe in allen Geschossen erlebbar gemacht. Das Dach bietet seinen Nutzern einen erlebbaren Naturraum inmitten eines urbanen Umfelds.

Diese Website verwendet Cookies.
Detailierte Informationen zum Datenschutz finden Sie auf der Seite Datenschutz


Diese Website verwendet Cookies.

Wir verwenden Cookies, um Inhalte und Anzeigen zu personalisieren, Funktionen für soziale Medien bereitzustellen und unseren Datenverkehr zu analysieren. Außerdem teilen wir Informationen über Ihre Nutzung unserer Website mit unseren Partnern für soziale Medien, Werbung und Analysen. Diese Partner können die Informationen mit weiteren Daten kombinieren, die Sie ihnen bereitgestellt haben oder die sie im Rahmen Ihrer Nutzung ihrer Dienste gesammelt haben.