PEAK

Alle Projekte
  • Jahr: seit 2013 – 2017
  • Kategorie: Revitalisierung, Interior Design
  • Nutzung: Büro
  • Konstruktion: Massiv
  • Mehr Details
    Leistungen
    LPH 1-8

    Standort
    Putzbrunner Straße 71
    München

    Brutto-Geschossfläche
    ca. 21.000 m²

    Auftraggeber
    BBV Immobilien-Fonds

Wir legen den Fokus auf die Revitalisierung von Bestandsgebäuden. Mit neuen Nutzungskonzepten, einer architektonischen Aufwertung und spannender Innenarchitektur lassen wir verlorene Orte wieder lebendig werden.

Für das seit geraumer Zeit leerstehende Gebäude wurde ein prägnantes Konzept entwickelt, dass dieses wieder attraktiv für den Vermietermarkt macht. Aufgrund einer Budgetbegrenzung war eine Generalsanierung jedoch nicht möglich.

Neues Erscheinungsbild

Zugänglichkeiten in Form von neuen, repräsentativen Lobbys wurden neu definiert und eine Adresse gebildet. Deren moderne Gestaltung bildet bewusst einen Kontrast zur Bestandssituation. Durch dreidimensionale Fassadenelemente, die sich vereinzelt über das gesamte Fassadenbild verteilen, wird dieser akzentuell betont. Die stilistischen Störelemente sollen die Neugier des Betrachters anregen und zu einer näheren Auseinandersetzung mit dem Gebäude bewegen.

Architektonisches Konzept

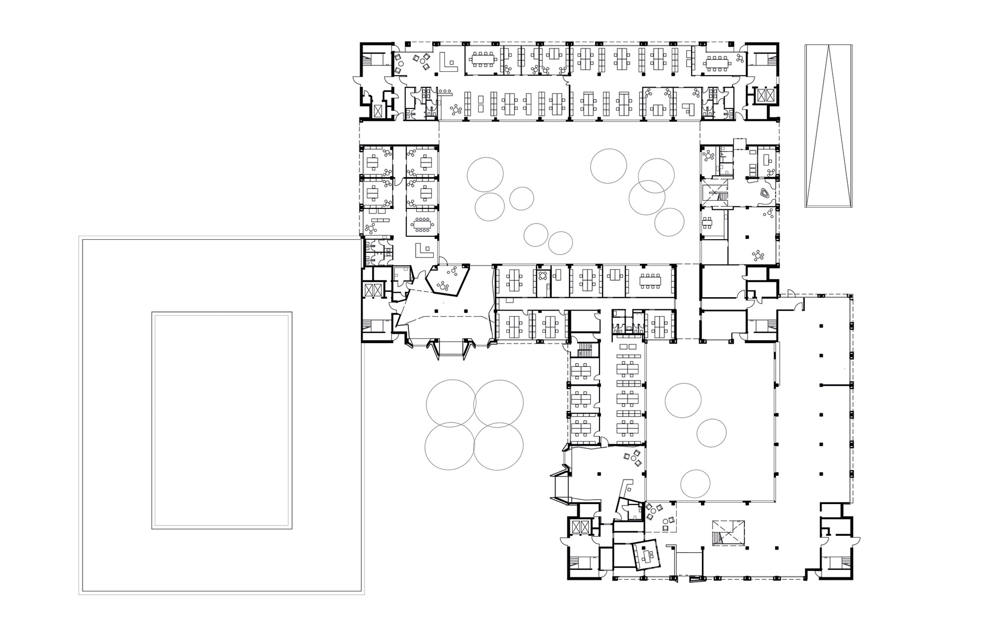
Die Erneuerung der Architektur setzt sich in expressiv anmutenden Eingangsfoyers sowie öffentlichen Gebäudeflächen fort. Funktional wird das Gebäude in flexibel nutzbare Einheiten aufgeteilt. Durch vielfältige Nutzungskonzepte bildet das Gebäude innerhalb des umliegenden Quartiers einen neuen Schwerpunkt. Das Landschaftskonzept ergänzt diesen Anspruch durch eine moderne Formensprache. Zahlreiche Durchgänge ermöglichen dem Nutzer eine Durchwegung des Gebäudes in erdgeschossiger Ebene.

Interior Design

Durch Eingriffe in die Fassade und Gebäudesubstanz entstehen luftige und repräsentative Foyers. Auch die Innenarchitektur führt den bewussten Kontrast zum Bestand fort. Die expressive Formensprache drückt sich durch die Linienführung und Materialwahl aus. Ein Konzept aus Lichtlinien in Boden, Decken und Wänden ist Teil des Leitsystems und gibt dem zweigeschossigen Raum die Anmutung einer minimalistischen Lichtinstallation.

Die überdimensionalen Fassadenelemente entfalten ihre Wirkung im Inneren durch die kontrastierende konkave Form in strahlendem Weiß und bilden die neue Landschaftsarchitektur des Vorplatzes wie ein Stillleben ab.

Raumwirkung

Das Farbkonzept aus weiß und hellem grau bekommt durch spiegelnde Metallpanele eine futuristische Note. Leuchtend gelbe Akzente markieren die Hauptfunktionen, wie Zuwege zu den Treppenhäusern. Die gesamte Linienführung, ob Galerie, Lichtlinien oder Fugenbild folgen einer gemeinsamen Formensprache und führen den Blick durch den Raum.

Diese Website verwendet Cookies.
Detailierte Informationen zum Datenschutz finden Sie auf der Seite Datenschutz


Diese Website verwendet Cookies.

Wir verwenden Cookies, um Inhalte und Anzeigen zu personalisieren, Funktionen für soziale Medien bereitzustellen und unseren Datenverkehr zu analysieren. Außerdem teilen wir Informationen über Ihre Nutzung unserer Website mit unseren Partnern für soziale Medien, Werbung und Analysen. Diese Partner können die Informationen mit weiteren Daten kombinieren, die Sie ihnen bereitgestellt haben oder die sie im Rahmen Ihrer Nutzung ihrer Dienste gesammelt haben.