Wohngebäude Seitzstraße

Alle Projekte
  • Kategorie: Revitalisierung
  • Nutzung: Wohnen
  • Konstruktion: Stahl
  • Mehr Details
    Scope
    LP 1–5 

    Location
    Seitzstraße 16
    München

    Gross Floor Area
    Vorher: 4.304 m²
    Nachher: 6.504 m² 

    Client
    Metropolian Liegenschaften GmbH

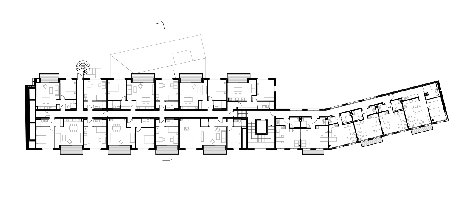
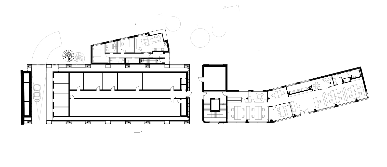
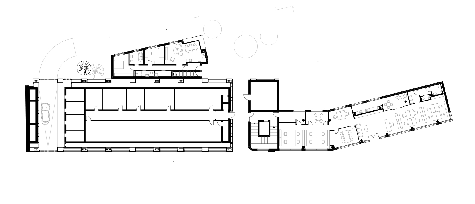
Durch die Revitalisierung der Gewerbeimmobilie in der Seitzstraße 16, wird neuer Wohnraum im beliebten Münchner Stadtteil Lehel geschaffen. Die Nähe zum Englischen Garten und Hofgarten ist identitätsstiftend für den Standort.

Die herausfordernde Bestandsstruktur der beiden postmodernen Gebäudeteile aus dem Jahr 1988 wurde zu Teilen vorsichtig zurückgebaut, um verbleibende Nutzungen nicht zu beeinträchtigen. Durch Umstrukturierungen und Erweiterungen wird Wohnraum geschaffen, welcher strukturell in die Gegebenheiten des Bestandes eingefügt wird.

Balkone, Loggien und begrünte Fassadenelemente lösen die monolithische Wirkung des Bestandes auf und bilden infolgedessen ein harmonisches Gesamtbild mit der Nachbarbebauung. Der bislang prägende Stahlskelettbau erfährt einen grundlegenden Wandel hin zu einem werthaltigen Stadtbaustein.

Diese Website verwendet Cookies.
Detailierte Informationen zum Datenschutz finden Sie auf der Seite Datenschutz


Diese Website verwendet Cookies.

Wir verwenden Cookies, um Inhalte und Anzeigen zu personalisieren, Funktionen für soziale Medien bereitzustellen und unseren Datenverkehr zu analysieren. Außerdem teilen wir Informationen über Ihre Nutzung unserer Website mit unseren Partnern für soziale Medien, Werbung und Analysen. Diese Partner können die Informationen mit weiteren Daten kombinieren, die Sie ihnen bereitgestellt haben oder die sie im Rahmen Ihrer Nutzung ihrer Dienste gesammelt haben.